СТРАНИЦА НЕ НАЙДЕНА!
Свежие, новые объявления о продаже, аренде недвижимости, квартиры, комнаты, дома, машиноместа, коммерческая недвижимость в Петрозаводске
5


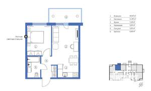
Комната в 2-к квартире, на длительный срок, 51м², 2/5 этаж
4 500 ₽ в месяц
район Зарека район, мкр. Урицкий микрорайон, Луначарского 13А
Есть мебель и бытовая техника. Комната сдается на длительный срок. Проведен интернет. Мебель и техника полностью остаются (холодильник, стиральная машина, кровать, микроволновка, плита).
Звоните
8...
Агентство, 09.08.2022
4


Комната в 2-к квартире, на длительный срок, 18м², 2/5 этаж
5 500 ₽ в месяц
район Перевалка район, мкр. Перевалка-3, Островского 87
Полный комплект мебели и бытовой техники, современный ремонт, есть все для комфортного проживания. В квартире подключен интернет (вай-фай) и кабельное телевидение. Уютная обстановка. Все вопросы может...
Агентство, 14.05.2022
Закладки
Личный кабинет

















































